A2401
4-roms med 2 bad og 2 balkonger
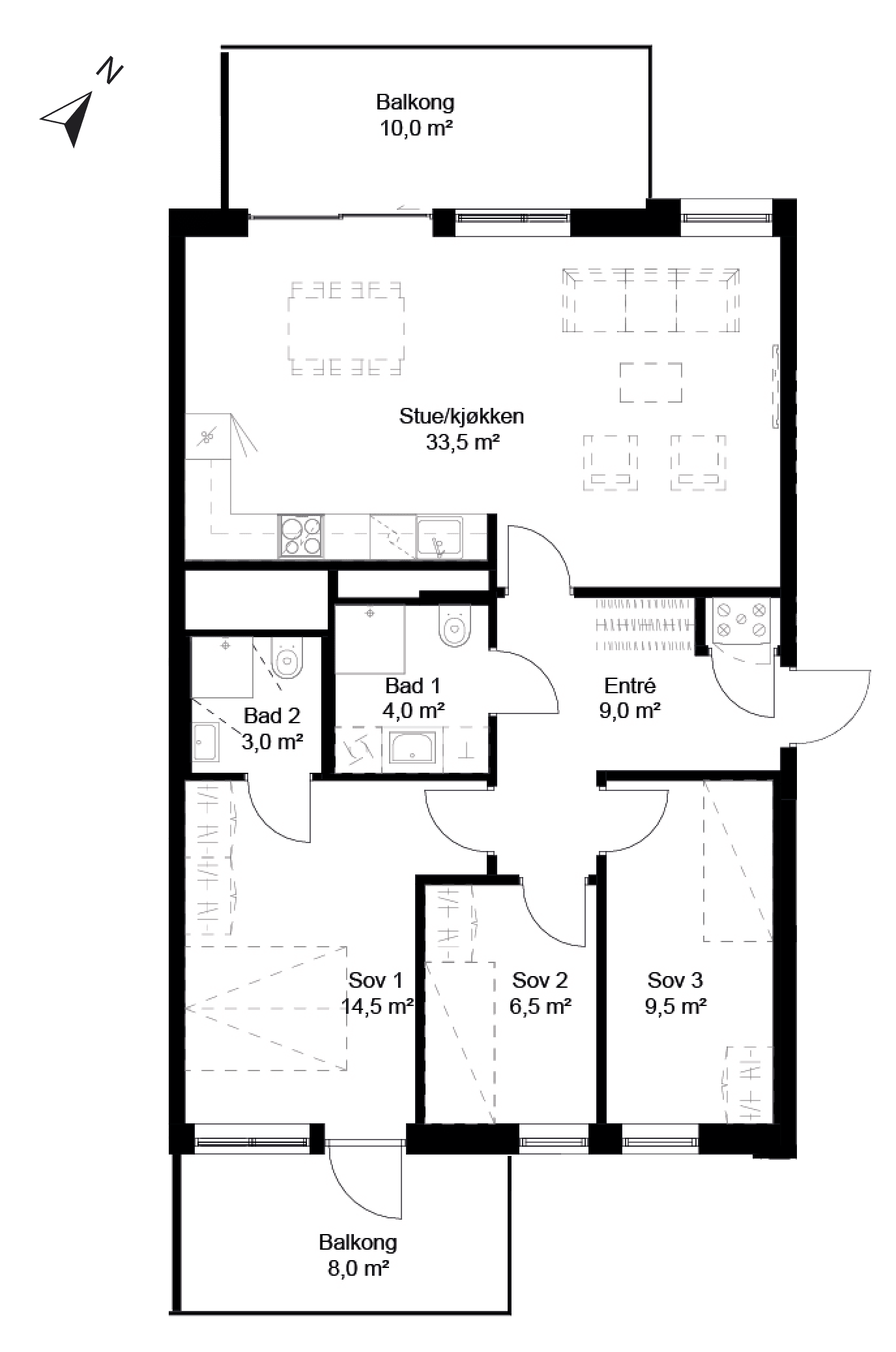
Leiligheten har god løsning med stor entré med avsatt plass til garderobeskap, gjestebad, tre soverom hvorav hovedsoverom har tilgang til eget bad og egen balkong på 8 kvm inn mot rolig bakgård som vender mot syd. Leiligheten har en stor stue som vender mot nordvest med åpen kjøkkenløsning på hele 33,5 kvm. Stuen har direkte utgang til en balkong på hele 10 kvm, med utsikt mot Sekkefabrikken.
Leiligheten leveres med kvaliteter, standard og materialer som er nøye plukket ut for at det både skal se bra ut, men også være tidløst:
- HTH kjøkken med integrerte hvitevarer og belysning under overskap
- Lekkert flislagt bad med HTH baderomsinnredning
- 1-stavs hvitpigmentert eikeparkett
- Vannbåren anlegg med gulvvarme
- Skjult elektrisk anlegg
- LED downlights på bad, WC og i entré
- Generell innvendig takhøyde er ca. 2,5 m.
- Mulighet for å velge mellom to ulike interiørpakker
Leiligheten har god løsning med stor entré med avsatt plass til garderobeskap, gjestebad, tre soverom hvorav hovedsoverom har tilgang til eget bad og egen balkong på 8 kvm inn mot rolig bakgård som vender mot syd. Leiligheten har en stor stue som vender mot nordvest med åpen kjøkkenløsning på hele 33,5 kvm. Stuen har direkte utgang til en balkong på hele 10 kvm, med utsikt mot Sekkefabrikken.
Leiligheten leveres med kvaliteter, standard og materialer som er nøye plukket ut for at det både skal se bra ut, men også være tidløst:
- HTH kjøkken med integrerte hvitevarer og belysning under overskap
- Lekkert flislagt bad med HTH baderomsinnredning
- 1-stavs hvitpigmentert eikeparkett
- Vannbåren anlegg med gulvvarme
- Skjult elektrisk anlegg
- LED downlights på bad, WC og i entré
- Generell innvendig takhøyde er ca. 2,5 m.
- Mulighet for å velge mellom to ulike interiørpakker
Status
Ledig
ID
A2401
Pris
8 550 000
Etasje
4
Soverom
3
BRA
93,5
BRA-i
88,5
BRA-e
5
Parkeringsplasser
Balkong m²
18,5
Omkostninger
38 460
Totalpris
8 588 460
