Boligvelger
Om Kystbyen
Kalender
Aktuelt
Dokumenter
Galleri
Naboinformasjon
Meld Interesse
Byggetrinn 1
Boligvelger
Om leilighetene
Dokumenter
Meld interesse
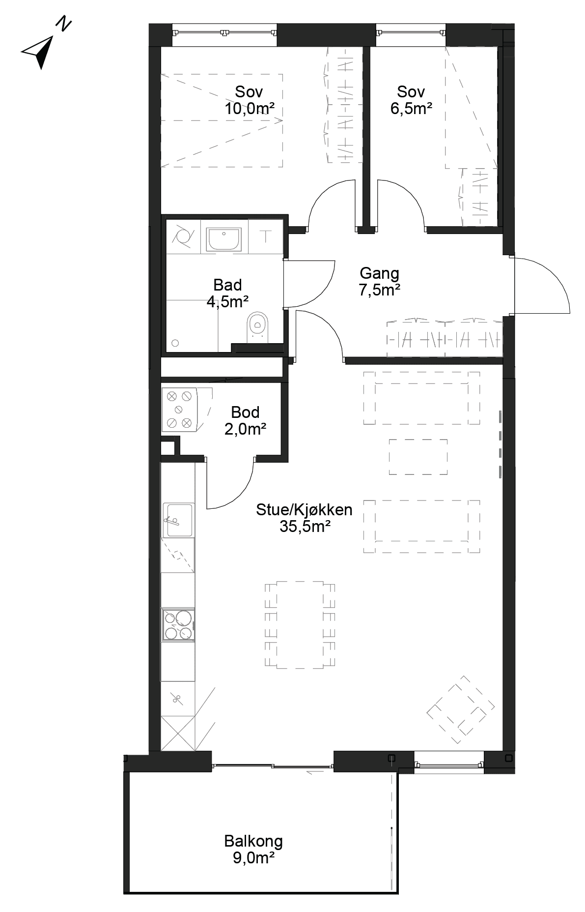
B5303
Solgt
Status
Solgt
ID
B5303
Pris
Etasje
3
Soverom
2
BRA
76
BRA-i
71
BRA-e
5
Parkeringsplasser
Balkong m²
9
Omkostninger
33 740
Totalpris
MELD INTERESSE
Fyll inn navn
Fyll inn telefonnummer
Fyll inn e-post
Jeg ønsker å bli kontaktet i samtykke med denne
personvernerklæringen
Send
Powered by Plyo
Tilbake til Boligvelger