Boligvelger
Om Kystbyen
Kalender
Aktuelt
Dokumenter
Galleri
Naboinformasjon
Meld Interesse
Byggetrinn 1
Boligvelger
Om leilighetene
Dokumenter
Meld interesse
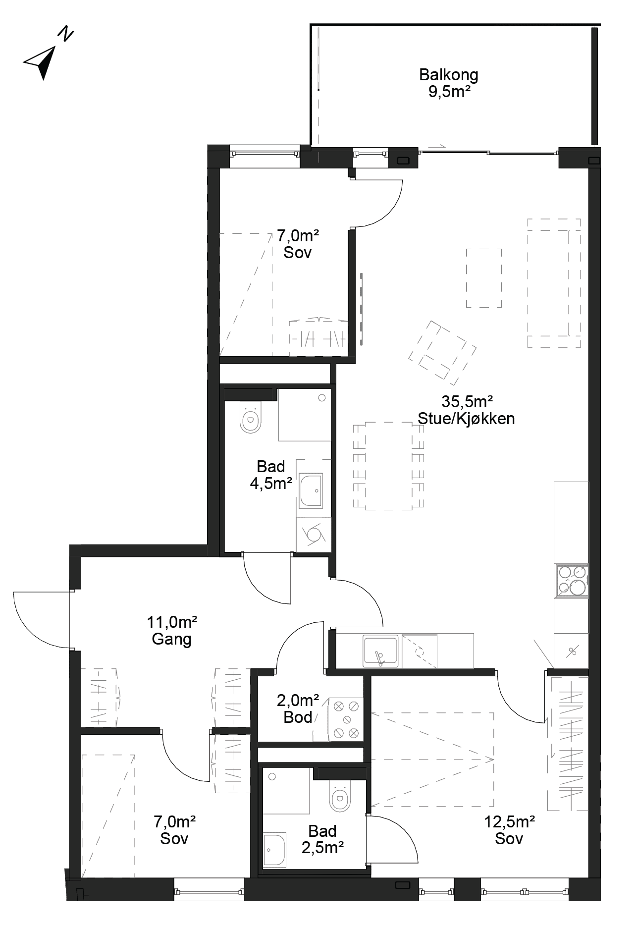
B1405
Solgt
Status
Solgt
ID
B1405
Pris
Etasje
4
Soverom
3
BRA
94
BRA-i
89
BRA-e
5
Parkeringsplasser
Balkong m²
9,5
Omkostninger
38 610
Totalpris
MELD INTERESSE
Fyll inn navn
Fyll inn telefonnummer
Fyll inn e-post
Jeg ønsker å bli kontaktet i samtykke med denne
personvernerklæringen
Send
Powered by Plyo
Tilbake til Boligvelger